라브르27 삼성동 하이퍼엔드 고급주택 공급정보
- 부동산☆/아파트
- 2024. 2. 11. 15:17
서울시 강남구 삼성동 90-20번지 일원에 삼성동 럭셔리 주거 트렌드를 견인할 새로운 하이퍼엔드 고급주택 라브르27이 착공을 시작했습니다. 단 27세대의 초고급 주거공간을 만드는 프로젝트로, 현재 분양을 진행하고 있습니다. 라브르27 모델하우스는 방문예약제로 운영되고 있으며, 아래에서 방문예약과 분양가를 안내받을 수 있습니다.

라브르27은 삼성동 예전 대웅제약 사택 부지에 지어지는 초고급 아파트로 2026년 입주가 예정되어 있습니다. 삼성동 고급빌라 단지에 위치하여 프라이버시를 중요하게 생각하는 최상위 분들을 위하여 공동주택의 편리한 시스템을 제공하면서 단독주택의 주거환경을 누릴 수 있도록 만들어집니다.
넓은 정원과 세대별 테라스 공간 등 도심속에서 프라이빗 네이처를 누릴 수 있는 단지 입니다. 입주민 분들의 생활 동선과 서비스 동선을 구분하여 사생활 침해 없이 완벽한 프라이빗 라이프를 누릴 수 있습니다.

사업부지는 서울시 강남구 삼성동 90-20번지 일원으로 대지면적 4,684㎡(약 1,417평)에 지하 4층 ~ 지상 7층에 공동주택 27세대를 공급합니다. 넓은 대지면적에 단 27세대만을 공급하여 궁극의 프라이빗 라이프를 누릴 수 있는 진정한 하이퍼엔드 입니다. 시공사는 현대건설이 시공을 맡아 믿을 수 있는 시공을 진행합니다.

라브르27은 9호선 봉은사역에서 약 200m 떨어진 곳으로 삼성동 아이파크 아파트와 봉은사역 사이에 위치합니다. 삼성동 일대는 코엑스 앞쪽 영동대로에 지하를 강남권 광역복합환승센터로 개발하는 초대형 프로젝트가 진행되고 있어서 지하에, GTX-A,C 노선, 도시철도 위례신사선, 지하철 2호선, 9호선 등이 들어올 예정입니다.
또한 코엑스부터 잠실종합운동장까지 국제업무, 전시, 컨벤션 등 MICE 산업을 중심으로 엔터테인먼트, 문화, 스포츠 등이 융합되는 국제 교류 복합지구가 조성고 현대 GBC 또한 건설될 예정입니다. 라브르27은 최고의 주거공간 뿐만 아니라 대한민국의 중심 강남 그 중에서도 최고의 개발이 진행되고 있는 삼성동의 입지로 최고의 가치를 모두 가진 곳입니다.

풍수지리적으로도 라브르27 사업부지인 삼성동은 룡 국세(局勢) 안에 금계가 알을 품은 듯한 형국으로 수도산의 생기가 멈추고 모인 곳에 천상의 닭이 장차 인재가 태어날 알을 품은 형상으로 재물이 모인다는 금계포란형(金鷄抱卵形)의 명당터 입니다. 건강, 사업번창, 행운을 관장하는 에너지가 인생 만물의 운명을 지배하는 신비적인 힘으로 생활에 활기를 불어넣는 촉매 역할을 하고, 부와 명예를 창출하는 삶의 질을 한 단계 업그레이드 하는 발복지 명당지 입니다.



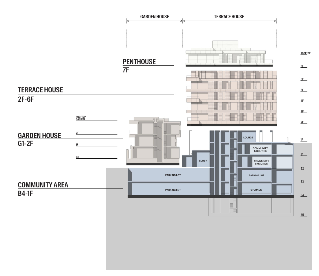
그야말로 가장 뛰어는 입지에서 만나는 가장 럭셔리한 고급주택 라브르27 입니다. 그럼 간략하게 라브르27 세대 구성에 대해서 알아보겠습니다. 지하 4층 ~ 1층은 커뮤니티시설과 주차장으로 구성이 되고 G1 ~ 2층에는 가든하우스, 2층 ~ 6층에는 테라스하우스, 7층에는 펜트하우스로 구성이 됩니다.

가든하우스는 고요하게 빛을 담아내는 앞마당과 후정, 주거 내부에서 하늘로 열린 중정이 갖춰지는 주거공간으로 전용면적 390 – 466m², 5세대를 공급합니다.

테라스하우스는 거실과 방에서 직접 연결되는 넓은 테라스와 확장된 창을 통해서 안과 밖에 하나되는 공간을 만듭니다. 테라스 정원으로 산책하는 느낌으로 공간의 경험을 극대화 합니다. 전용면적은 전용면적 239 – 271m²로 20세대를 공급합니다.

마지막으로 라브르27의 펜트하우스 입니다. 펜트하우스는 남향을 포함하여 3면이 넓고 긴 테라스로 도심 주거에서 볼 수 없었던 거대한 파노라마 뷰와 함께 프라이빗하고 편안한 도심속 안식처를 누릴 수 있습니다. 전용면적은 전용면적 490 – 546m²로 2세대를 공급합니다.
라브르27 모델하우스에 방문하시면 자세하게 라브르27에 대한 상세한 정보를 안내받을 수 있습니다. 모델하우스는 사전 예약제로 운영되고 있습니다.

'부동산☆ > 아파트' 카테고리의 다른 글
| 르엘 어퍼하우스 서초 헌인마을 단지형 고급주택 분양 (0) | 2024.02.28 |
|---|---|
| 포제스 한강 잔여세대 선착순 계약안내 (0) | 2024.02.21 |
| 부천 중동역 래미안 어반비스타 18평 소형 아파트 분양전환 (1) | 2024.01.31 |
| 래미안 부천 어반비스타 18평형 아파트 분양 (1) | 2024.01.27 |
| 포제스 한강 청약일정(특별공급, 1순위, 2순위), 분양가 안내 (1) | 2024.01.21 |